Здравствуйте!
В долевой собственности находится кирпичный дом. Дом и участок были разделёны по решению суда
Дом расположен в черте города, земли ЛПХ, у меня имеются свидетельства о собственности на дом и землю, у соседей после смерти предыдущего хозяина пока нет (делят наследство).
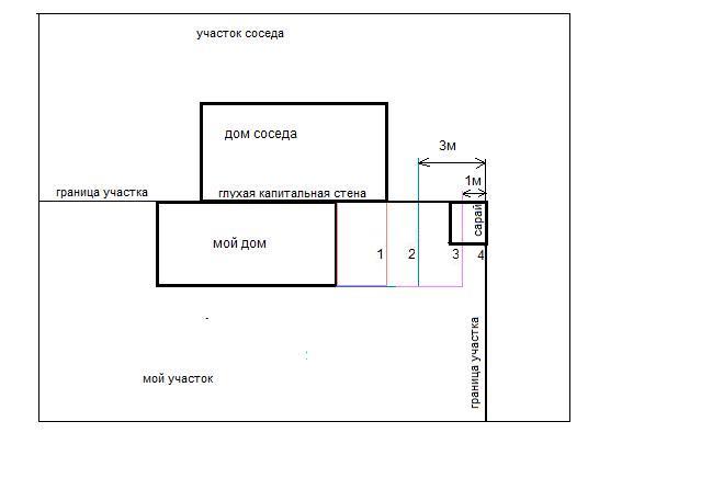
Пожалуйста, посмотрите рисунок (кликните по нему, он увеличится). На нём схематически изображены наши участки и дом.
В углу находится мой сарай, который есть в БТИ.
Я хочу возвести одноэтажную пристройку к своей части под отдельной крышей.
В пристройке будут находиться тамбур (вход в дом), санузел и сарай с отдельным входом.
Могу ли я расположить пристройку вдоль границы участка, продолжая глухую стену между нашими частями таким образом,
как изображено на рисунке?
Если да, то по какой линии (1,2,3 или 4)?
Или я должен буду отступить и от этой границы?
Как быть с сараем, могу ли я присоединить его к дому?
Какие документы мне будут необходимы для начала строительства?
Спасибо!
С уважением,
Борис